Installez Boîtier mural
![]() |
Appliquez le revêtement mural conformément aux normes industrielles applicables. Percez les trous à l’aide d’un foret d’un diamètre maximal de 25 mm. Laissez de l’espace libre pour le Boîtier mural.
Figure 14. Uniquement valable pour l’installation Orbital AudioAttention
Assurez-vous d’appliquer de la colle de construction sur toutes les couches de panneaux muraux.

Retirez la porte du Boîtier mural. Pour ouvrir, appuyez sur le coin supérieur gauche et soulevez la porte pour la dégager des supports.

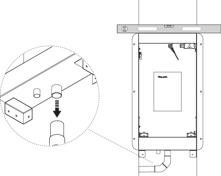
Soulevez le Boîtier muralpour le mettre en place et abaissez doucement la sortie de l’armoire dans le tuyau de vidange.

[en] Mount the Wall Box in line with the front of the drywall.

x8
Vis à tête cylindrique en acier inoxydable
Raccordez le tuyau de vidange au Boîtier mural.

