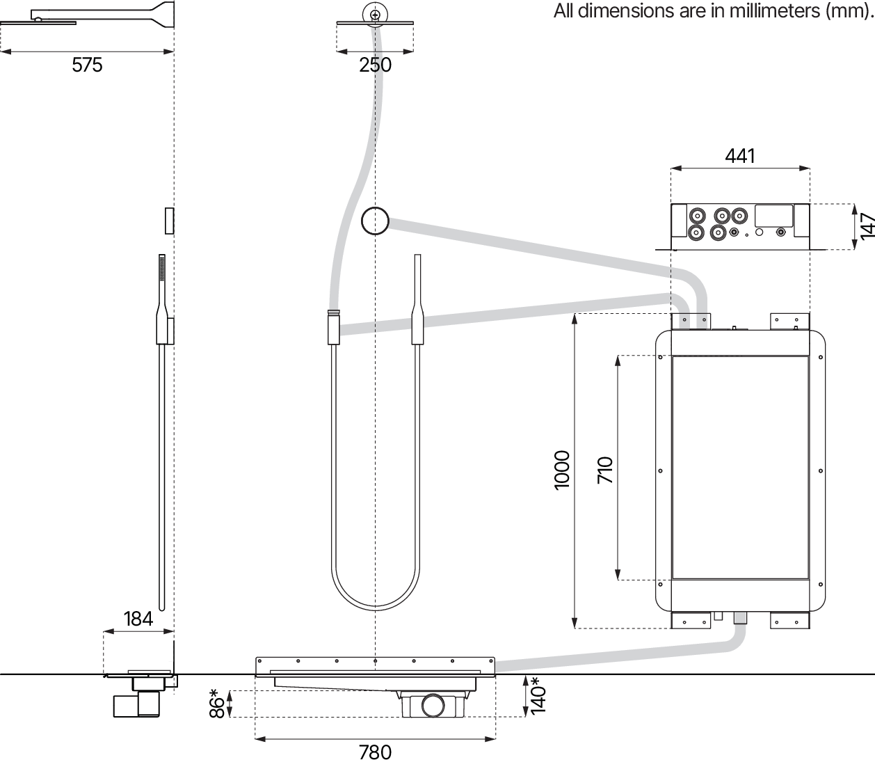
InstallationOrbital ShowerHatch TiledInstallation du supportInstallation du supportDimensions du kitDimensions du kit*Le piège à eau inclus a une hauteur de 86 mm, mais plusieurs options interchangeables sont disponibles, avec des hauteurs à partir de 52 mm. Des options avec différentes tailles et directions de sortie sont également disponibles.