Mesures d’installation recommandées
![]() |
La mesure X fait référence au niveau du sol où l’étanchéité est raccordée à la bride de vidange du sol. Ce repère sera utilisé comme point de référence dans la zone de douche pour d’autres mesures dans l’installation.
![]() |
![]() |
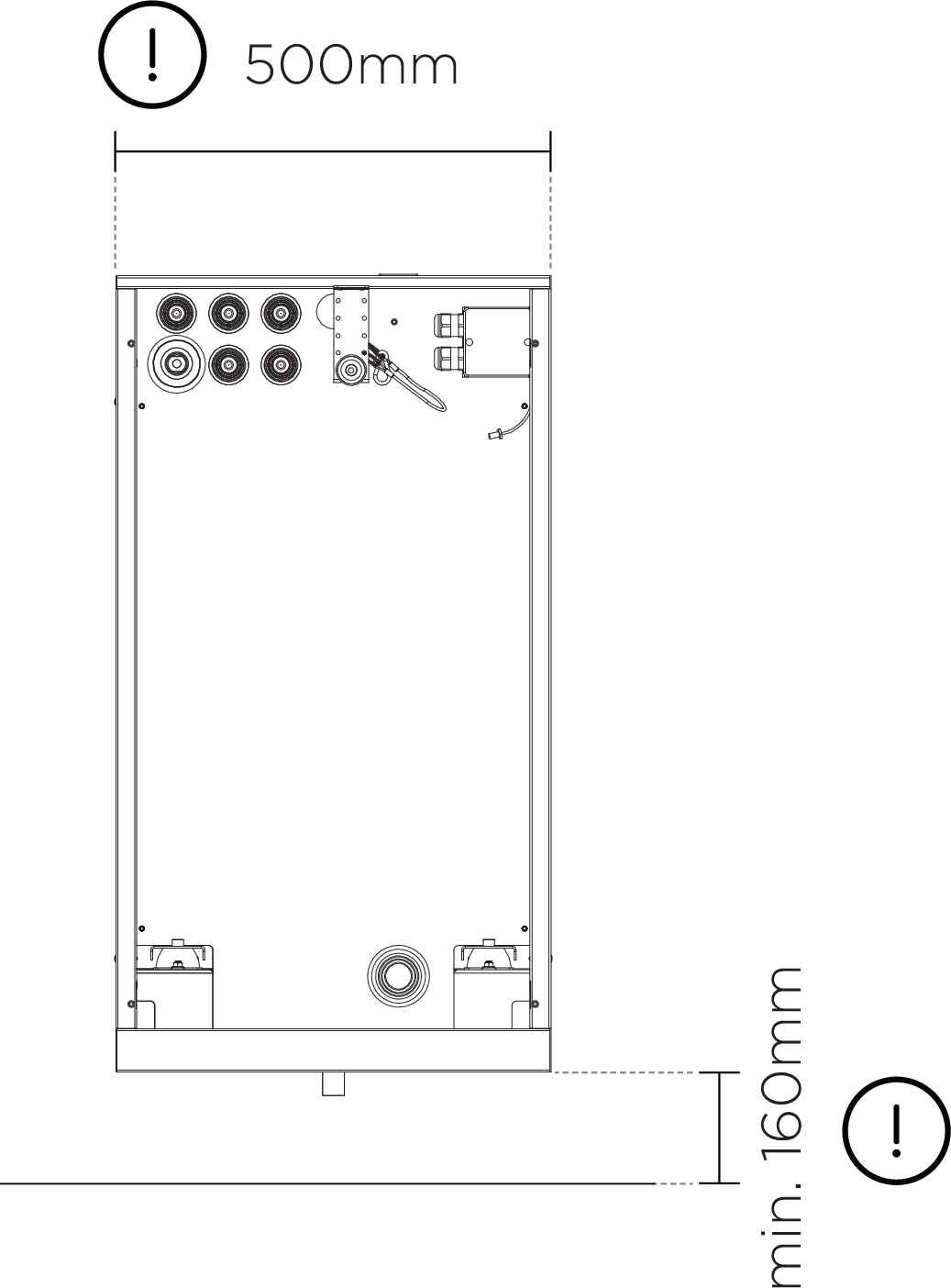
Important
L’eau du robinet ne peut être aspirée que par l’arrière ou par le haut.
L’indicateur de fuite doit être monté à au moins 60 mm du sol ou du mur.


