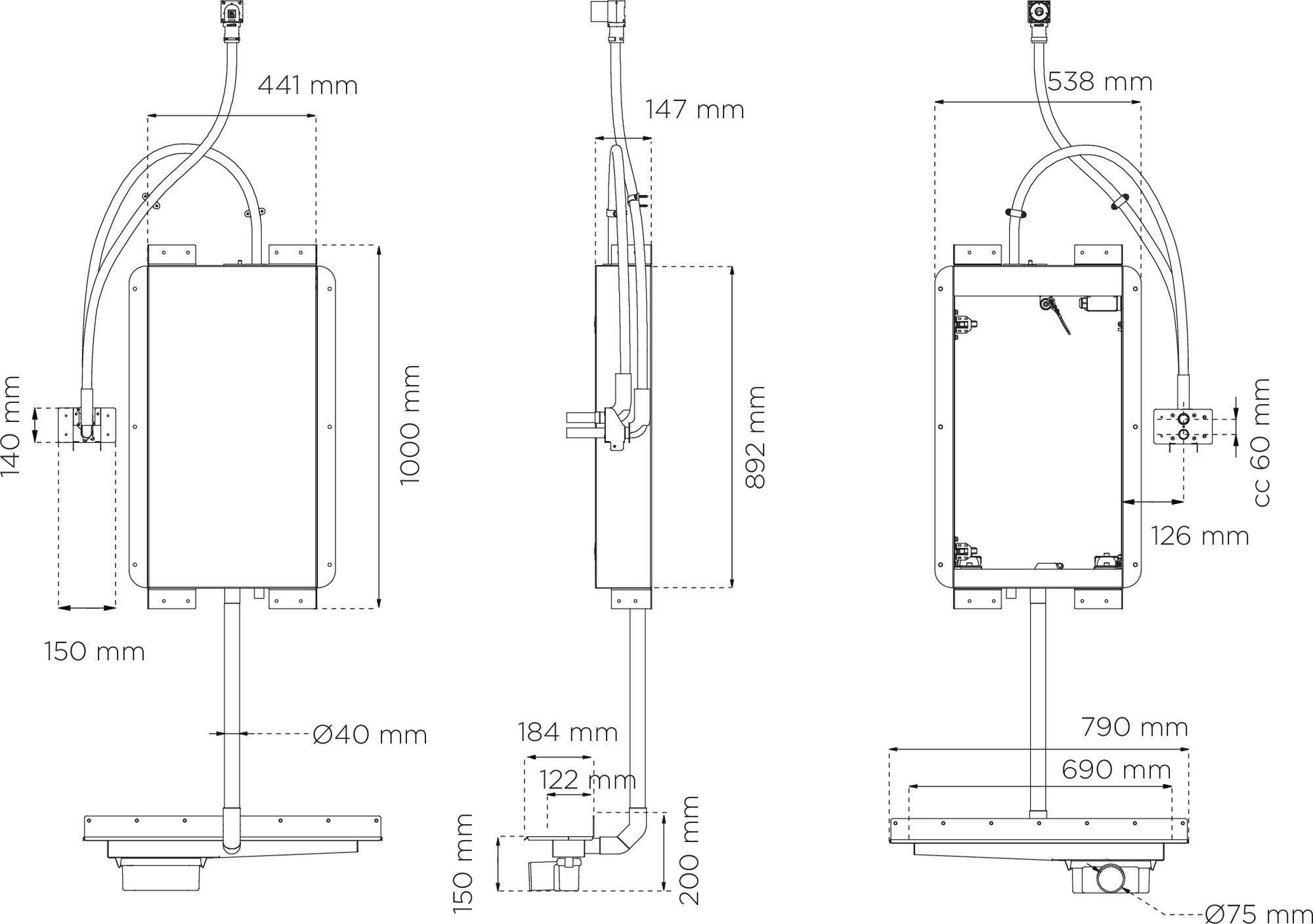
InstallationOrbital ShowerHatch PanelInstallation du supportInstallation du supportDimensions du kitDimensions du kit