Hatch Tiled

- . Scénario d’installation
Hatch Tiled peut être installé à l’intérieur ou à l’extérieur de la zone de douche, dans une pièce avec un sol étanche. Il nécessite une construction neuve ou une rénovation. Vous trouverez plus de détails concernant l’installation dans les manuels d’installation.
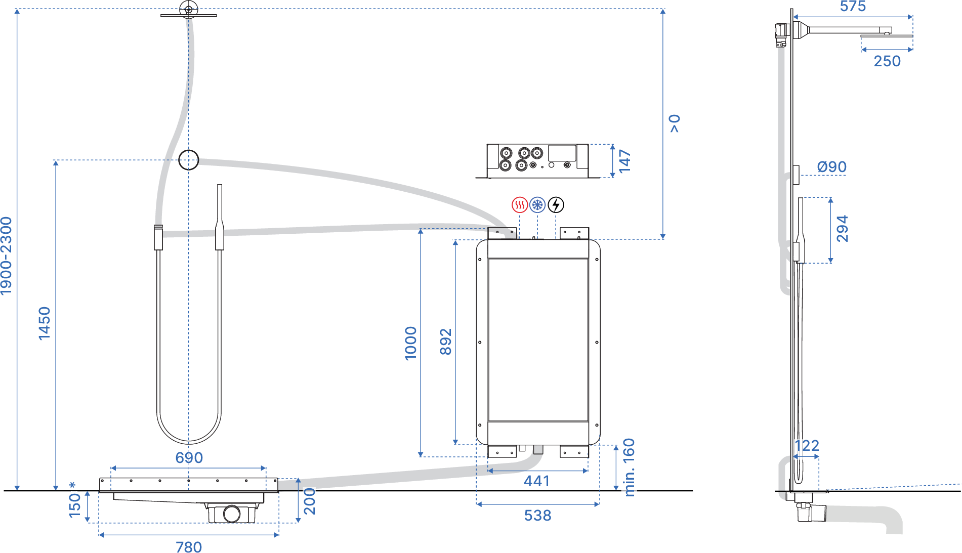
Le Core (unité de douche) peut être placé à moins de trois mètres de la zone de douche.

Il peut y avoir un maximum de trois virages (6x45°).

La profondeur des goujons dans la zone de la douche doit être d’au moins 90 mm et au niveau du noyau d’au moins 145 mm.

Le Core ne peut pas être placé à plus de trois mètres de la zone de douche.

Il ne peut pas y avoir plus de trois virages (6x45°) entre la zone de douche et le noyau.

Le routage des tuyaux ne peut pas contourner une porte.

Toutes les mesures sont exprimées en millimètres (mm).

* Le siphon d’eau fourni répond à la norme européenne EN1253-1 et peut être utilisé pour des bâtiments de n’importe quelle hauteur. Si le bâtiment comporte un rez-de-chaussée et jusqu’à trois étages au-dessus, vous pouvez utiliser un piège à eau conçu pour les bâtiments plus courts qui suivent les normes EN1253-6 et EN1253-7. Les modèles Unidrain 1417 ou Unidrain 1415 sont de bonnes options.